
SALAS DE CULTIVO INDUSTRIALES
Ingeniería y desarrollo profesional para grandes cultivadores. Dimensionamos y ponemos en marcha proyectos a gran escala para una producción profesional y escalable.

Diseñamos y construimos salas de cultivo personalizadas para adaptarse a necesidades específicas, con sistemas de control ambiental, gestión de recursos y energía solar para reducir costos operativos y sacar la mayor rentabilidad.


En EcoApo, desarrollamos proyectos integrales, desde la asesoría, planificación y construcción, hasta la puesta en marcha de las salas. Los proyectos pueden ser llave en mano y totalmente personalizados, los cuales no solo ahorran costos y tiempo, sinó que cumplen con normativas y están diseñadas para ser escalables, permitiendo el crecimiento progresivo de tu inversión incluyendo la posibilidad de integrar sistemas solares.
NUESTRO OBJETIVO
LA MEJOR SALA ESTÁ A SOLO UNOS PASOS DE LLAMARNOS
UNA INDUSTRIA EN CRECIMIENTO, NO TE QUEDES AFUERA.
DESARROLLO DE PROYECTOS PARA CADA CASO DE CULTIVO
EMPEZÁ A CULTIVAR


Tu Proyecto en 4 Pasos
Asesoramiento Inicial: Nos reunimos con vos para entender tus objetivos y necesidades.
Diseño Personalizado: Creamos un plan que maximiza el espacio, la eficiencia y el rendimiento de tu futura sala.
Instalación y Puesta en Marcha: Nos encargamos de todo, desde la instalación hasta la calibración de sistemas.
Acompañamiento y Soporte: Te ayudamos a optimizar tu cultivo para que saques el máximo provecho de tu inversión.


Iluminación de Alto Rendimiento:
Instalamos sistemas de iluminación LED de espectro completo que optimizan el crecimiento de las plantas en cada etapa del cultivo, logrando un desarrollo saludable y una alta producción.


Extractores y Sistemas de Ventilación:
Nuestras salas están equipadas con extractores y sistemas de ventilación que regulan el flujo de aire y mantienen niveles óptimos de CO₂, esenciales para la salud de las plantas y la calidad del cultivo.

Energía solar
aplicada al cultivo
Las salas de cultivos requieren una cantidad significativa de energía, lo cual es fundamental al momento de calcular los costos de tu inversión. Para asegurar un rendimiento óptimo y sostenible, es crucial contar con una fuente de energía confiable y eficiente. En este sentido, la energía solar se presenta como la mejor opción disponible en el mercado.
150+
40+
Salas sostenibles
Producciones exitosas


EcoApo te ofrece soluciones energéticas sostenibles, respaldadas por un equipo de profesionales con años de experiencia en el sector. Al elegir tecnología solar, podrás reducir considerablemente tus costos operativos y contribuir al cuidado del medio ambiente, al mismo tiempo que garantizas un funcionamiento eficiente de tus instalaciones.
Transformá tus salas de cultivo en espacios más rentables y sostenibles




Sala Inicial
Planos y renderización para floración y vegetación.




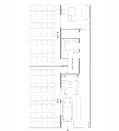
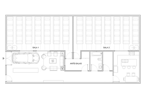
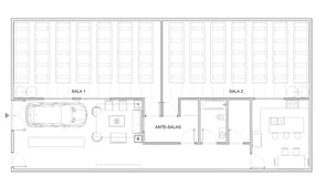
Este modelo incluye dos espacios dedicados, uno para la fase de vegetación y otro para la floración, permitiendo ciclos de cultivo continuos y sin interrupciones.
Sala Medium Pro
Planos y renderización para floración y vegetación.
Este modelo incluye dos espacios dedicados, uno para la fase de vegetación y otro para la floración, permitiendo ciclos de cultivo continuos y sin interrupciones.




Sala High Room
Planos y renderización para floración y vegetación.




Este modelo incluye dos espacios dedicados, uno para la fase de vegetación y otro para la floración, permitiendo ciclos de cultivo continuos y sin interrupciones.
Preguntas frecuentes
¿Dónde realizan los trabajos?
Mayormente los proyectos se realizan en Buenos Aires y alrededores.
¿Que materiales se utilizan?
En la creación de salas de cultivo, utilizamos materiales de alta calidad y eficiencia para garantizar un espacio funcional, seguro y duradero. Cada elemento es seleccionado según las necesidades específicas del proyecto, ya sea para cultivos indoor o exteriores.
¿Que es llave en mano?
Un proyecto "llave en mano" significa que nos encargamos de todo el proceso necesario para poner en marcha tu sala de cultivo, desde el diseño inicial hasta la entrega final completamente funcional.
¿Como los puedo contactar?
Podés contactarte a través de WhatsApp ó Email. También si rellenas el formulario de contacto te contactamos directamente.
Contactanos
Compartinos todas tus dudas y serás contactado lo antes posible por un representante de nuestro equipo de atención personalizada al cliente.
apogreengrowth@gmail.com

